Die überaus sonnige und ruhige Wohnlage ruft nach einem grosszügigen Haus für eine Familie. Multifunktionale Räume bieten nebst den üblichen Räumen Platz für Home Office, Hauswirtschaft. Grosszügige Bäder laden zum Entspannen ein.
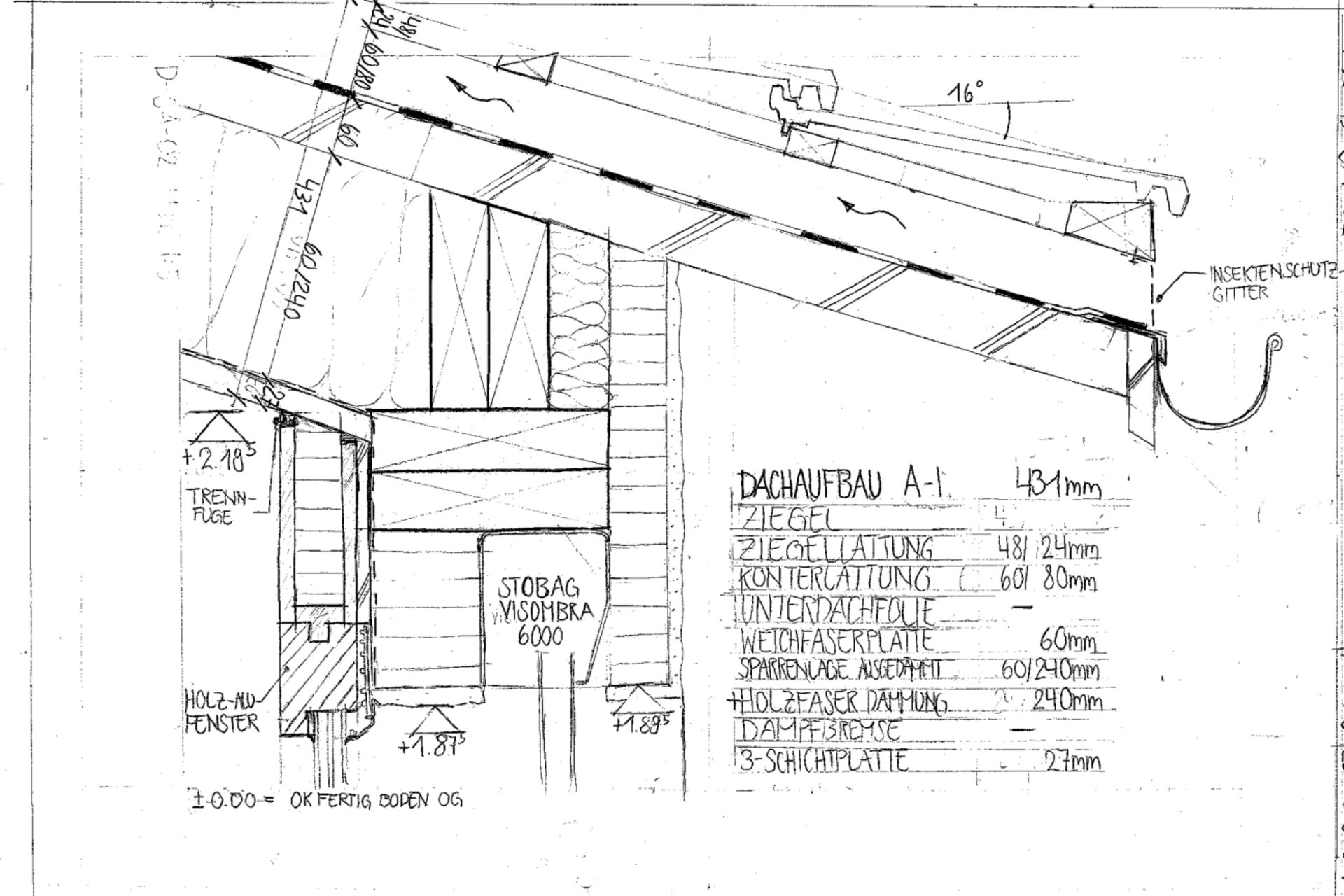
Das Gebäude mit Baujahr 1975 verfügt über eine gesunde massive Grundsubstand, jedoch kaum über eine Dämmung. Die Substanz bleibt erhalten, wird erweitert und vollumfänglich energetisch saniert. Der alte Dachstuhl inkl. der Ziegel wird für einen Pferdeunterstand weiter verwendet.







