Die neue Innendämmung ermöglicht ein sehr angenehmes Raumklima. Neu ist die Küche mit dem Wohnzimmer zusammengelegt. Der neue Cheminéeofen bringt zusätzlich eine wohlige Atmosphäre in den Raum. Die neuen Badezimmer bieten besten Komfort. Die neue Lukarne bringt Luft und Licht ins Dachgeschoss. Das freistehende Gebäude ist echt ein Bijou .
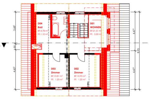
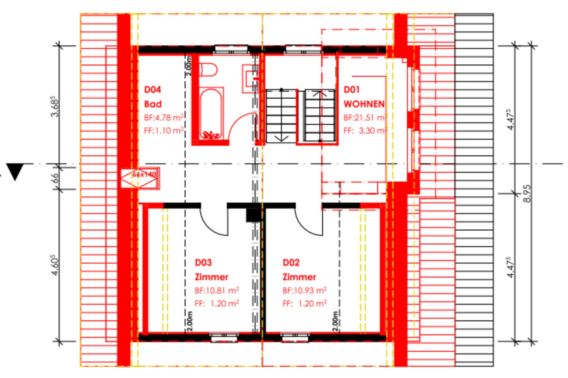
Das grosse Dachgeschoss soll neu auch genutzt werden und erfährt eine umfangreiche Nachdämmung. Die Elektrospeicheröfen werden durch eine Luftwasserwärmepumpe ersetzt. Die Decke über Werkstatt und Garage werden nachgedämmt und ein Windfang im Korridor vermeidet Durchzug in die oberen Stockwerke.


