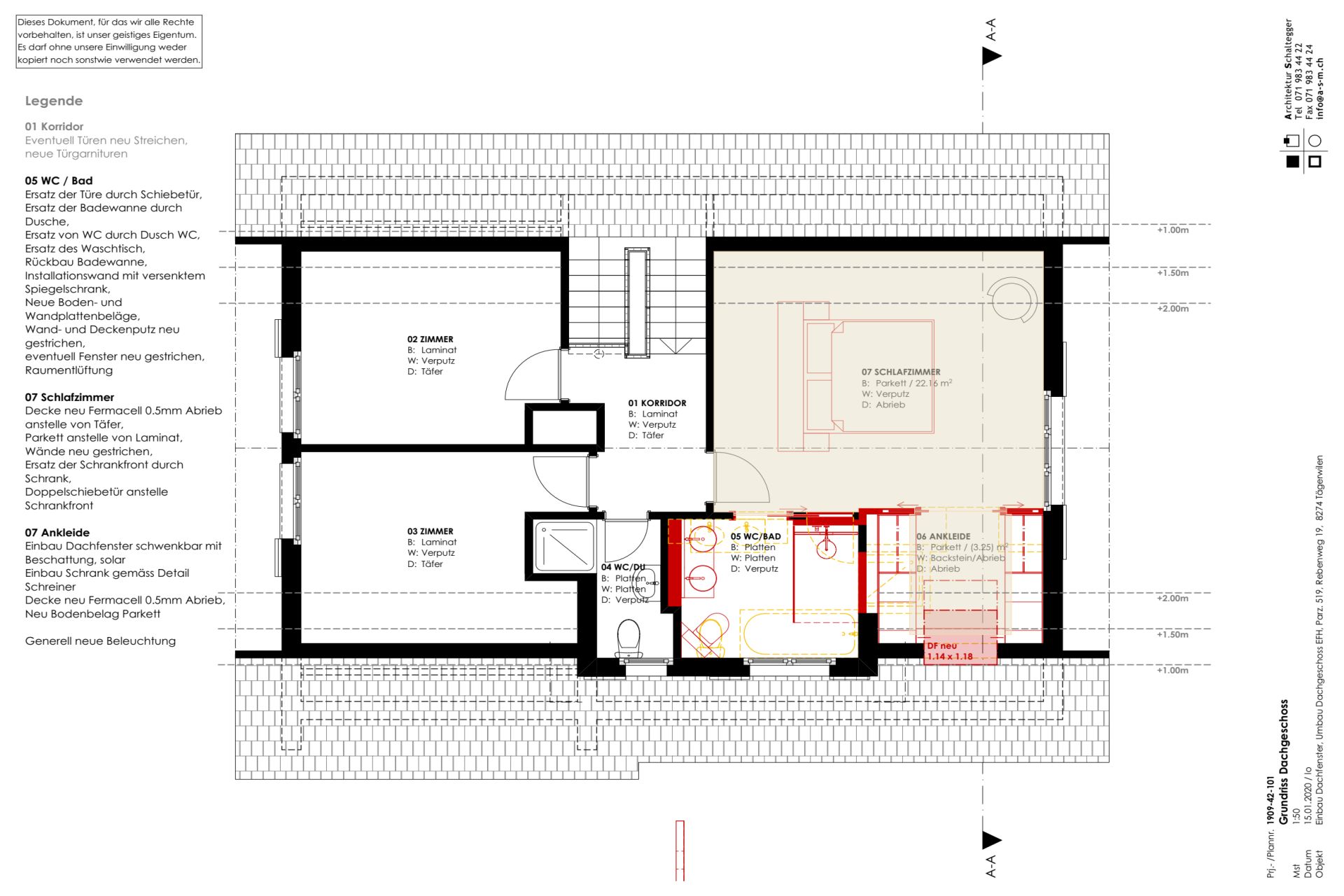
Die Ankleide, in der bestehenden Dachschräge eingebaut, hellt mit dem neuen Dachfenster enorm auf und belichtet zusätzlich über die Schiebetüren das Schlafzimmer, das eher etwas knapp mit Fenstern bestückt ist.
Innerhalb der bestehenden Struktur soll das neue Bad mit Ankleide das Elternschlafzimmer aufwerten.



