Wenig Platz, aber dafür sinnvoll eingeteilte Räume mit einer, je nach Bedürfnis nutzbarer Nische. Der Holzofen dient nicht nur zu Heizzwecken, sondern auch für eine heimelige Stimmung. Jede Partei soll und darf sich im Garten betätigen und einbringen, sei es mit Gemüseanbau oder Spiel und Spass. Für vorübergehenden Mehrbedarf an Räumlichkeiten stehen im bestehenden Wohnhaus Räume zur Verfügung (Gäste, Hobby etc.)
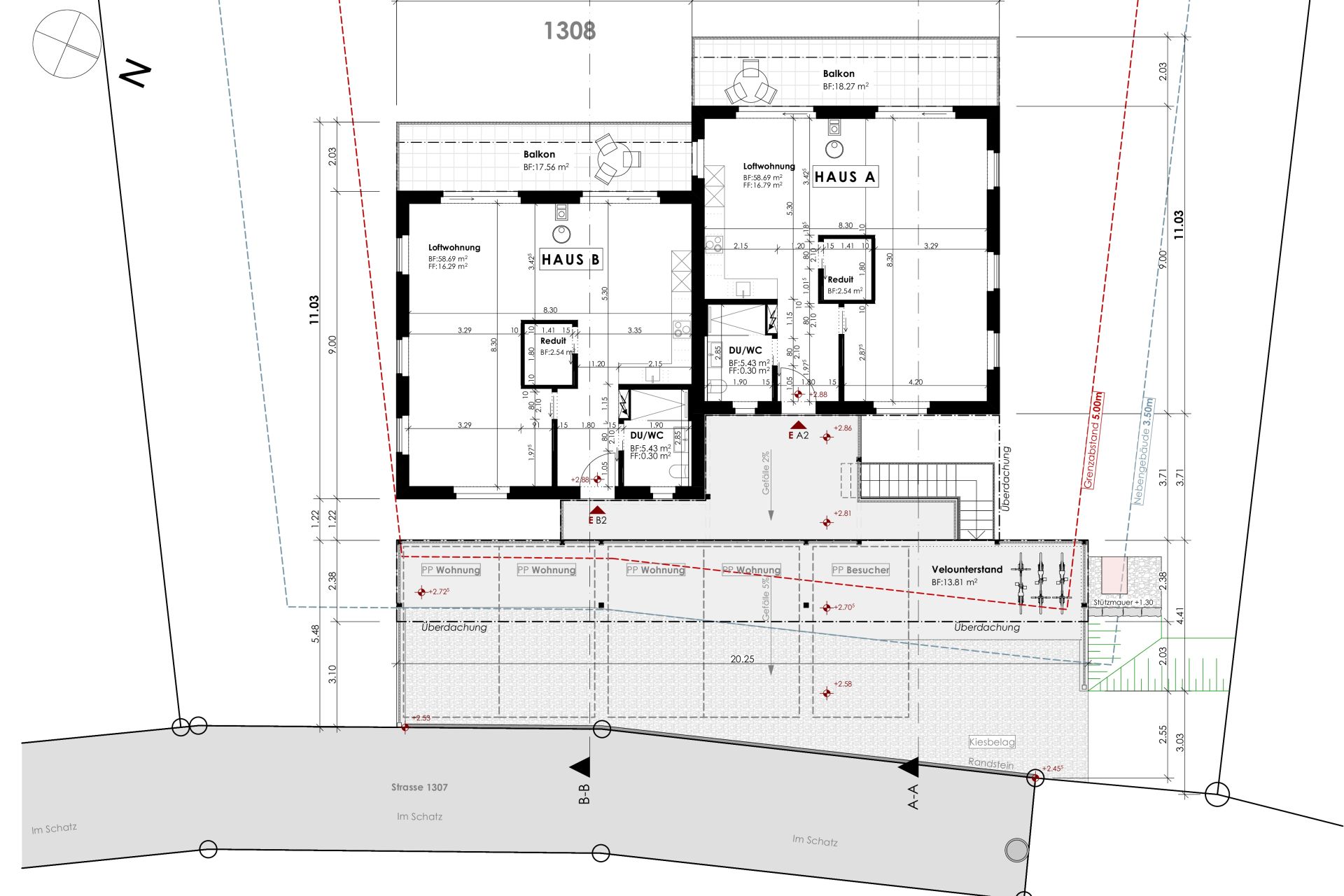
Die Kleinwohnungen (Tiny Houses) liegen nicht nur im Trend, sie weisen durch ihre Kompaktheit (Zusammenbau) wenig Aussenhülle aus, wo Wärme entfliehen kann. Eine Zentralheizung speist die vier Einheiten. Die Waschküche wird gemeinsam genutzt, wie in einem Mehrfamilienhaus. Die von der Gemeinde geforderten Parkplätze werden multifunktional als Velounterstand mit Ladestation ausgebildet. Die Holzbauweise unterstützt den ökologischen Gedanken.


